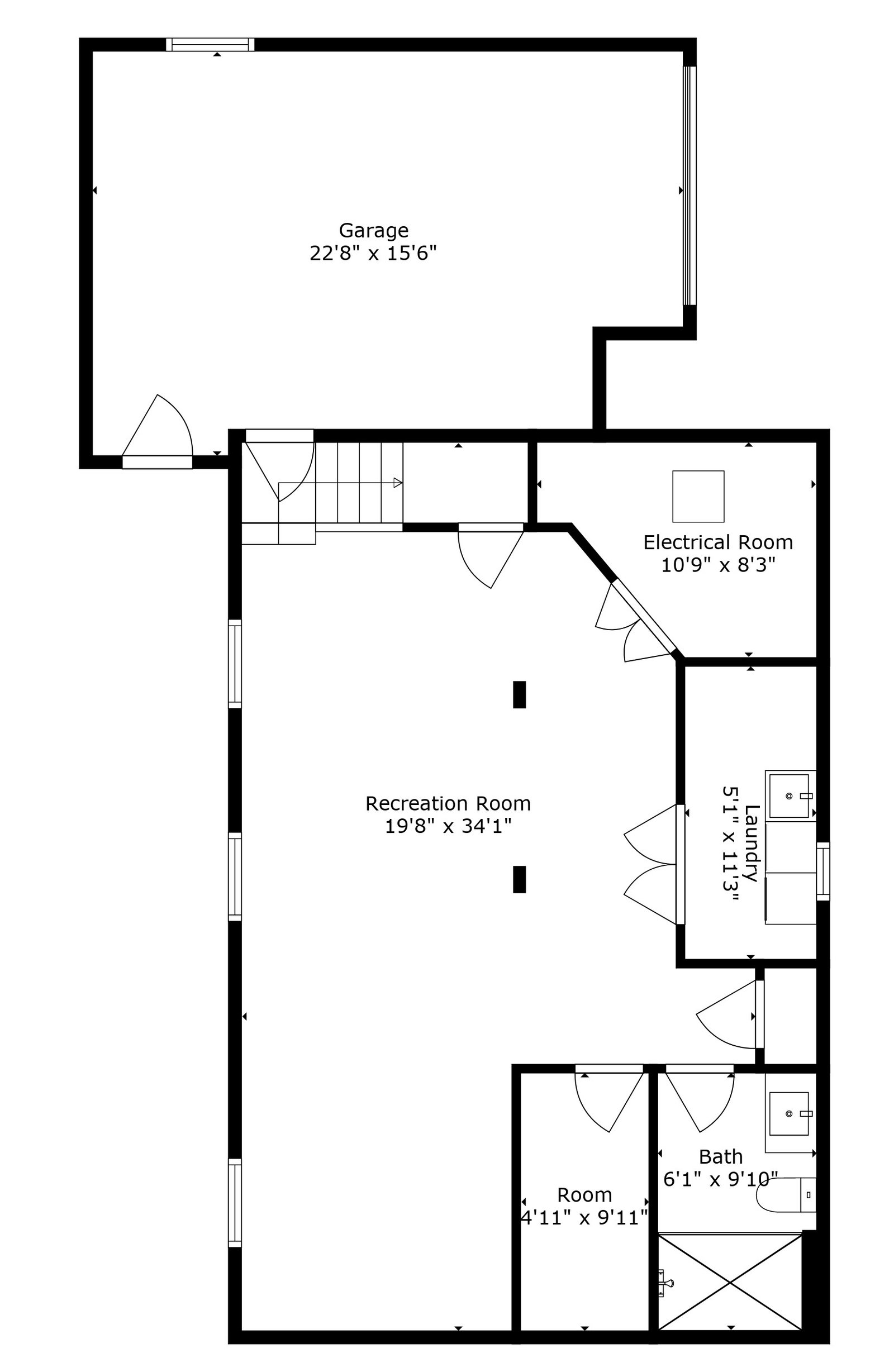
Situated in the heart of Marblehead’s world-renowned Historic District, this beautifully renovated 3-bedroom, 2-bath home seamlessly blends classic charm with modern updates. The inviting enclosed front porch leads into a sun-filled interior with thoughtful renovations throughout. The main level offers a comfortable flow, while the finished lower level provides additional living space, a full bathroom, and a laundry area—perfect for a home office, guest space, or recreation room. Enjoy outdoor living on the deck overlooking Old Town. A one-car garage adds convenience, while the home’s prime location offers easy access to Marblehead Harbor, historic landmarks, shops, and dining. Experience coastal New England living at its finest in this rare gem that combines history, character, and modern comfort and conveniences!
Property Details
Photos
Floor Plans
Map
Presented By

